Overview
- Updated On:
- 16 March 2026
- 3 Bedrooms
- 2 Bathrooms
- Property ID
- 276116
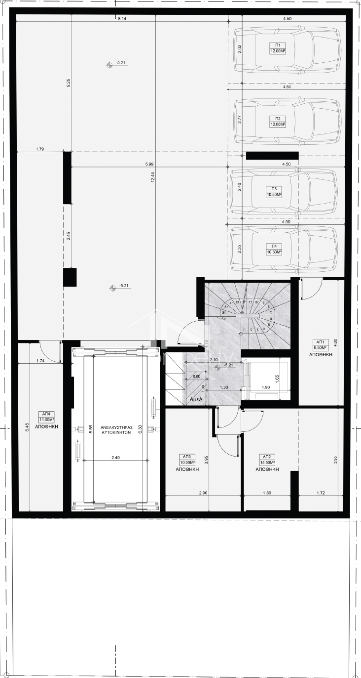
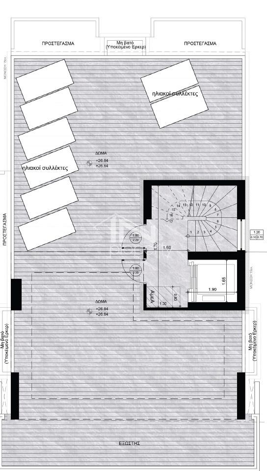
- 120 m2
- Year Built:2025
Description
120 sq. m. apartment in Palaio Faliro. Located in the heart of Palaio Faliro, in a spot that strikes the perfect balance between the city and the sea, this 120 sq.m. sixth-floor apartment embodies a contemporary living concept with clean lines, luxurious aesthetics, and functional design. Currently under construction, with a completion date of 2025, the property is designed for those seeking a bright, airy home that is effectively tailored to the needs of modern daily life.
The open and spacious living-dining-kitchen area with a dining table forms the natural heart of the home, a space where daily life unfolds with comfort, flow, and a sense of freedom. The open layout allows light to flood the entire depth of the apartment, while the terrace serves as a natural extension of the interior, offering an additional level of comfort and connection to the urban landscape.
With 3 bedrooms and 2 bathrooms, the layout strikes a balance between private and shared spaces, comfortably meeting the needs of a family, a couple, or an investor. The west and southeast orientation, combined with the building’s facade and open-plan design, enhance natural light, ventilation, and a sense of spaciousness.
The residence has an A energy rating and incorporates all the technical features that support a high-quality lifestyle, such as independent natural gas heating, underfloor heating, air conditioning, a boiler, thermal insulation, and soundproofing.














